Der Schutz Ihrer Daten liegt uns besonders am Herzen. Darum möchten wir Sie informieren, welche Daten wir von Ihnen sammeln, speichern und ggf. an Drittanbieter übermitteln. Durch Klick auf den folgenden Link gelangen Sie zu unserer Datenschutzerklärung:
Unsere Datenschutzerklärung können Sie hier herunterladen:

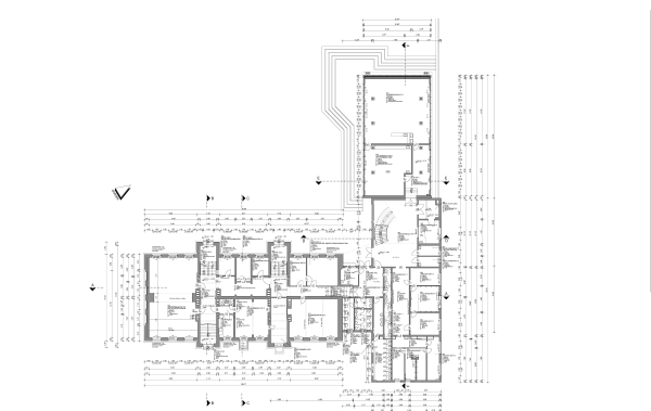
CAD + Aufmaß + Bestandserfassung
Für unsere Auftraggeber erstellen wir sogenannte Bestandserfassungen. Hierbei nehmen wir vor Ort Aufmaß, d.h., wir vermessen das Gebäude, anschließend erstellen wir anhand der aufgemessenen Daten CAD-Zeichnungen. Auf Wunsch erstellen wir auf diese Weise auch Bestandspläne für städtische Gebäude, private Immobilien und Makler.
Natürlich können wir mit Hilfe der von uns erfassten Daten auch Wohnflächenberechnungen nach Wohnflächenverordnung oder nach DIN erstellen.



Vielfach bildet die Bestandserfassung auch die Grundlage für die Planungen unserer Architekturprojekte, vor allem bei Um- und Ausbauten.